Appartamento in vendita a Carate Urio

In vendita
Carate Urio - VIA REGINA NUOVA
289.000 €
Appartamento
Categoria
200
m2
4
Locali
Descrizione
CASA LE BALZE – VIVERE IL LAGO DI COMO.
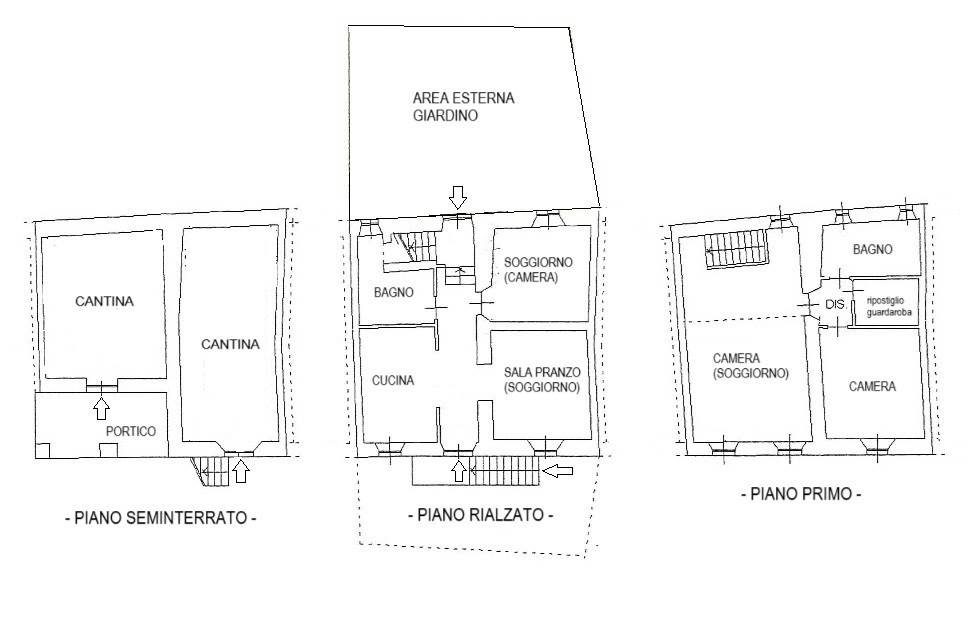
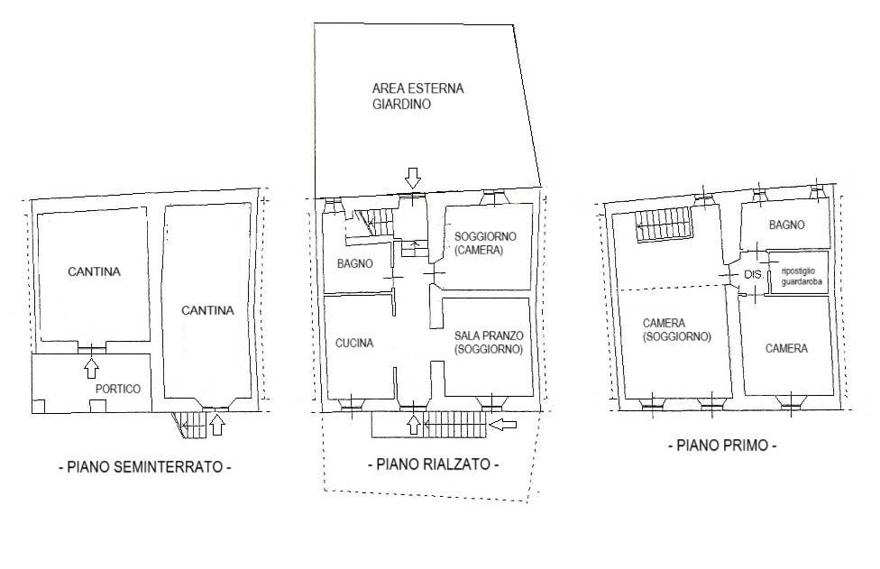
A pochi minuti da Como e Cernobbio, in uno dei tratti più autentici ed affascinanti del Lago di Como, sorge un territorio dove la qualità della vita torna protagonista ed ogni angolo racconta una storia: borghi in pietra, viste mozzafiato. Questa zona, vicinissima al confine svizzero è perfetta per chi desidera restare connesso al mondo senza rinunciare alla tranquillità. Milano si raggiunge in un’ora, Lugano in meno di mezz’ora, Como in 15 minuti. Ma basta uscire di casa per trovarsi immersi in un panorama da cartolina. Carate Urio, tra antichi sentieri, ville storiche, spiaggette nascoste ed una passeggiata sul lungolago. Chi sceglie il Lago di Como non cerca solo un immobile, ma uno stile di vita non ordinario. Che si tratti di una prima casa, un rifugio del weekend o un investimento per affitti turistici, vivere qui è sempre una scelta di valore. La casa indipendente, in sasso originale, è distribuita su tre livelli con una suddivisione logica e funzionale degli spazi interni: al piano strada/seminterrato le zone cantine di circa 50 mq con due locali distinti ideali per conservazione e zona hobby oltre a piccolo portico; al piano rialzato/terra di circa 75 mq una zona giorno ben organizzata, con spazio cucina abitabile, ambiente adibito a sala pranzo, locale soggiorno/conversazione, bagno; al piano superiore di circa 75 mq, raggiungibile dalla scala interna, la zona notte riservata con due camere da letto, il locale ripostiglio/guardaroba ed il locale bagno oltre a spazio sottotetto/ripostiglio. A completare la proprietà le aree esterne/giardino di circa 200 mq a monte della casa. Le tre balze verdi, ideali per godere appieno della quiete, offrono spazi sempre fruibili e riservati come un piccolo orto, uno spazio all’aperto dove prendere il sole o cenare al tramonto. E poi la vista si apre sulla bellezza del Lago di Como. Indipendente, nessuna spesa condominiale, struttura in sasso, solida e a bassa manutenzione, spazi concreti e ben distribuiti. Riscaldamento termo-autonomo. La Casa Le Balze, immersa nel borgo, senza traffico né rumore, offre privacy, charme, escursioni, passeggiate, lago. La proprietà, adatta per chi cerca funzionalità, autenticità, armonia con il territorio, è il punto d’incontro perfetto tra natura, bellezza del paesaggio e vita quotidiana. Raggiungibile a piedi tramite i caratteristici viottoli del borgo, parcheggio libero per i residenti a circa 100 metri.
NOTA: Si avvertono i Signori clienti che gli indirizzi inseriti all’interno dell’annuncio sono puramente indicativi e non rispecchiano la realtà. Questa indicazione vuole essere un ausilio nell’indicazione della zona pur rispettando la Privacy dei venditori. Ulteriori chiarimenti possono essere forniti presso la nostra sede o telefonicamente.
ASSOLUTAMENTE DA VEDERE! CONTATTACI PER MAGGIORI INFORMAZIONI!
Caratteristiche principali
Codice:
V001430
Città:
Carate Urio
Categoria:
Appartamento
Locali:
4
Mq:
200
Classe energetica:
G
175
Mappa
Cookie preference