Rustico/Casale in vendita a Gera Lario

In vendita
Gera Lario - Via Statale Regina
370.000 €
Rustico/Casale
Categoria
338
m2
175
Locali
Descrizione
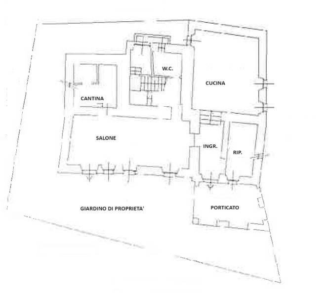
Il Fascino Autentico di Gera Lario. Nel cuore dell'antico borgo di Trezzone, sospeso tra l'azzurro del Lago di Como e il verde intenso delle Alpi Lepontine, sorge questo caratteristico casolare in pietra a vista. Una proprietà che incarna l'essenza dell'architettura lariana, dove il calore della materia prima si sposa con un panorama mozzafiato. L’Architettura e gli Interni, la casa si sviluppa su un'ampia metratura di ben 15 vani, distribuiti con sapienza per offrire comfort e privacy, Il Piano Terra, Cuore della Casa, entrando, si viene accolti da una zona giorno luminosa e vibrante, pensata per la convivialità. Il grande salone e la cucina abitabile sono i protagonisti assoluti: entrambi sono impreziositi da camini che creano un'atmosfera calda e accogliente nelle serate invernali. Entrambi gli ambienti si aprono direttamente sul giardino privato, creando un continuum perfetto tra interno ed esterno. Completa il piano un bagno di servizio funzionale. Il Primo Piano: Riposo con Vista Salendo al primo livello, la zona notte offre quattro ampie camere da letto e un bagno padronale. Il vero gioiello di questo piano è la terrazza panoramica, un affaccio privilegiato dove lo sguardo spazia su una bella vista lago, ideale per colazioni al sole o aperitivi al tramonto. Il Sottotetto: Fascino e Volume, l’ultimo piano ospita una suggestiva mansarda con altre due camere, caratterizzate da un elegante soppalco. Questo spazio versatile si presta perfettamente come studio creativo, zona relax o area per gli ospiti, mantenendo intatto il sapore delle dimore di una volta grazie alle travi a vista. Un Territorio tra Sport e Natura, situata a Gera Lario, la frazione di Trezzone è un angolo di pace assoluta, pur essendo a pochi minuti dai centri nevralgici e dai servizi. Adrenalina sull'Acqua, Gera Lario è una delle capitali mondiali per gli amanti del vento. La zona è rinomata per il Kitesurf e il Windsurf, grazie alle brezze costanti che rendono lo specchio d'acqua un paradiso per gli sportivi. Slow Living e Trekking, Per chi preferisce la terraferma, la proprietà è il punto di partenza ideale per passeggiate rigeneranti lungo la riva del lago o per escursioni più impegnative verso i monti circostanti, lungo sentieri che offrono scorci inediti sulla riserva naturale del Pian di Spagna.
Caratteristiche principali
Codice:
V001418
Città:
Gera Lario
Categoria:
Rustico/Casale
Locali:
175
Mq:
338
Classe energetica:
G
Mappa
Cookie preference