Casa singola in affitto a Carate Urio

In affitto
Carate Urio - Via Regina Nuova
1.500 €
Casa singola
Categoria
200
m2
4
Locali
Descrizione
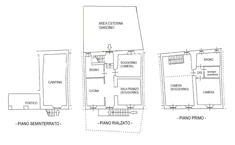
Casa Indipendente – Locazione Lago di Como – Carate Urio
Splendida casa indipendente in sasso originale, disposta su tre livelli con spazi razionali e funzionali, completamente arredata.
Al piano rialzato/terra, di circa 60 mq, si trova la zona giorno con ampia cucina abitabile, sala da pranzo separata e soggiorno ideale per conversazioni o come spazio studio, oltre al bagno.
Al piano superiore, sempre di circa 60 mq e collegato tramite scala interna, la zona notte offre due camere da letto, bagno e pratico locale ripostiglio/guardaroba.
Al piano strada/seminterrato si trova una caratteristica cantina di circa 25 mq con soffitto a volta, perfetta per conservare o come spazio hobby.
La proprietà è completata da 200 mq di aree esterne, con terrazze verdi su tre livelli che regalano momenti di relax immersi nella tranquillità del borgo. Spazi sempre riservati e fruibili per godersi il sole o una cena all’aperto con vista sul paesaggio circostante.
Casa indipendente, senza spese condominiali, con riscaldamento termoautonomo.
Accesso pedonale tramite i suggestivi viottoli del borgo; parcheggio libero per i residenti a circa 100 metri.
Nota: Gli indirizzi riportati nell’annuncio sono indicativi, a tutela della privacy dei proprietari. Per informazioni dettagliate contattaci telefonicamente o presso la nostra sede.
ASSOLUTAMENTE DA VEDERE! Contattaci subito per maggiori informazioni!
Caratteristiche principali
Codice:
A000119
Città:
Carate Urio
Categoria:
Casa singola
Locali:
4
Mq:
200
Classe energetica:
G
175
Mappa
Cookie preference